この物件の募集は終了しました。

名古屋市南区明治2丁目の中古一戸建の過去掲載物件情報

愛知県名古屋市南区明治2丁目

名鉄常滑線「道徳」駅徒歩7分

名鉄常滑線「豊田本町」駅徒歩8分

所在地
愛知県名古屋市南区明治2丁目
築年
2005年9月(築20年)
交通

名鉄常滑線道徳」駅 徒歩7分

名鉄常滑線豊田本町」駅 徒歩8分

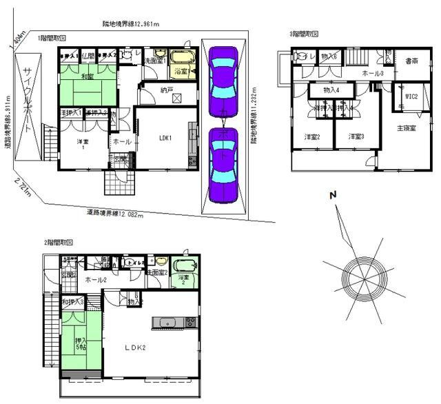
物件の特徴

  • TVモニタ付きインターホン

  • カウンターキッチン

基本情報

物件名
名古屋市南区明治2丁目の中古一戸建
向き
種別/構造
中古一戸建/軽量鉄骨
築年月
2005年9月(築20年)
総戸数
-
所在地
愛知県名古屋市南区明治2丁目
交通

名鉄常滑線道徳」駅 徒歩7分

名鉄常滑線豊田本町」駅 徒歩8分

設備条件

設備条件
  • 閑静な住宅地
  • リノベーション済
  • バルコニー
  • 都市ガス
  • オール電化
  • 駐車2台可
  • IHクッキングヒーター
  • コンロ2口以上
  • 対面式キッチン
  • コンロ3口
  • 追焚機能浴室
  • 温水洗浄便座
  • トイレ2ヶ所
  • 浴室1坪以上
  • ウォークインクロゼット
  • TVモニタ付インターホン
  • 角部屋
設備(その他)
    -
販売戸数 / 総戸数
- / -

名古屋市南区明治2丁目の中古一戸建

お気軽にお問い合わせください

無料お問い合わせ

株式会社喜一

052-325-4111

10:00~17:00

(休:日曜日 / 水曜日)